<< Back to Main Page

Apartment Santa Maria 6

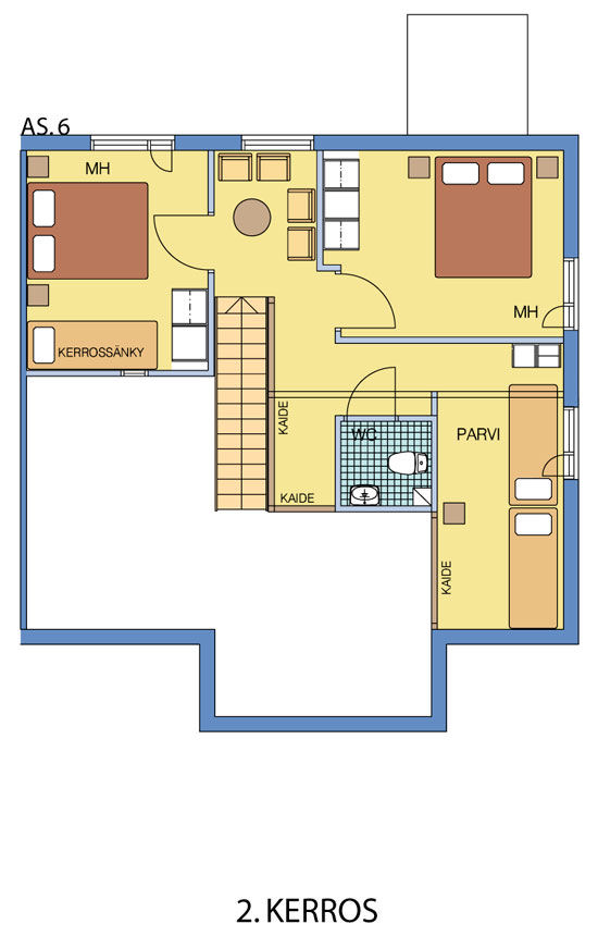
Santa Maria, Apartment 6

4Bedrooms+ kitchen + sauna + upstair loft area 103m² + terrace with glass windows 13m²

Santa Maria apartments are ideal choice for group of 12 persons. All apartments have  12beds + 3 extra beds and cot. Dishes for 15 persons.

  • Price includes 7 persons.
  • Price of extra persons is 40€/person/day.
  • Children under 5 years are no charge.
  • Linen, towels and final cleaning are not included
Linen+ towels €15/person ( delivered, beds are not made)
Final cleaning €150
 

Approximate rental prices: ( Please ask a quote)

Weeks 1,  25, 52 - 53 350.00€/night, 2450€/week
Weeks 14 - 17, 39 - 41, 43, 46 - 51 284.00€/night, 1688€/week
Weeks 2 - 13, 18 - 38, 42, 44 - 45: 300.00€/night, 1800€/week

Santa Maria apartments have plenty of room space and large covered terrace with a view over the lake. Spacious accommodation is comfortable for large group of visitors.

Enjoy your stay in Santa Maria

It's pleasant to spend time in glass terrace. The outdoor terrace also has a barbecue. Families with small children have been considered in terrace planning. Terraces are equipped with a fence and a port with lock. Thus smallest members of the family can use the terrace as a playground. Customers are responsible for locking by them self.

Outside terrace has gas grill.

The apartments have air-conditioning and cool-air-system.

In planning holiday apartments, Kullasmarina is also paid attention to customers which have physical disabilities. Doorway sizes are planned for passing with a wheelchair and every holiday apartment is equipped with a slide. There are bedrooms in first floor in larger apartments.